LIVSSTILSBOENDE I EFTERTRAKTADE SJÖDIKEN I SVEDALA

Några få gånger kommer gedigna och välbyggda villor ut på marknaden och detta är en sådan gång! Vi är oerhört glada över att vi fått förtroendet att förmedla denna arkitektritade stenvilla som ligger i Sjödiken, strax utanför Svedala och med närhet till Bökerbergs vackra skogar. Närhet till såväl Malmö, Lund och internationella flygplatser såsom Sturup och Kastrup gör det enkelt att bo här.

Fastigheten har varit i samma släkts ägo sedan 1940 och nuvarande ägare lät år 1974 uppföra en helt ny villa på denna plats (endast grunden på norr fick stå kvar, annars hade inte bygglov beviljats).

Villan har gjuten platta och väggarna är murade i siporex som utvändigt klätts med fasadsten. Uppvärmningssystemet är ytjordvärme vilket är oerhört energisnålt och har resulterat i att fastighetens byggnad fått ett A i energideklarationen.

Boytan är på hela 215 kvm och till detta tillkommer en biarea på 118 kvm (poolrum, garage och förråd).

I dag inrymmer villan ett underbart vardagsrum (38 kvm), allrum (45 kvm), kök med matplats, 4 sovrum, 2 badrum, förråd som förberetts för bastu, tvättrum, pannrum, förråd m.fl. utrymmen.

Addera härtill ett fantastiskt poolrum på 80 kvm med pool (7 x 3,5 meter).

Vidbyggt med villan finns ett bra garage och arbetsrum (27 kvm).

Trädgården är på 7 542 kvm och är en riktig oas med fruktträd, perenna blommor samt vintergröna buskar. Här finns flera uteplatser där man kan söka antingen sol eller skugga.

För den som är intresserad av odling så finns även ett växthus, vilket givetvis medföljer köpet.

Om ni har har hund kan det vara bra att veta att hela tomten är inhägnad med staket och nät.

Fastigheten har givetvis kommunalt vatten och avlopp men det finns även en egen brunn med hydrofor, vilket är perfekt för den som vill använda sig av eget vatten.

VÄLKOMMEN ATT ANMÄLA DIG TILL VISNINGEN PÅ SJÖGRÄSVÄGEN 40. Du bokar genom att klicka på boka visning!

-o-o-o-O-o-o-o-

Obs! Försäljningen sker på följande sätt:
Någon förhandsvisning kommer inte att äga rum och ej heller försäljning före utsatt visningsdag.
Säljaren undanber sig jämväl sk. dolda bud.

Information ang. ev. budgivning:
Vi använder oss av Identifierad Budgivning via BankID och bekräftat lånelöfte.
Om du är intresserad av att lägga bud efter avslutad visning så meddela ansvarig mäklare.
Mäklaren bjuder därefter in dig till budgivningen och du lägger ditt bud enkelt och säkert med hjälp av BankID.
Detta förfaringssätt tillämpas för såväl din som för säljaren säkerhet.
Tryggt och säkert helt enkelt!

-o-o-o-O-o-o-o-

Denna bostad är bara en av de som vi har till försäljning för stunden och fler är på gång. Funderar du på att sälja din villa eller bostadsrätt? Välkommen att kontakta fastighetsmäklare Mikael Ottosson på 040-40 00 02 (direktnummer).

Boarea
215 kvm
Antal rum
6 rum
Tomtarea
7 542 kvm
Pris
5 750 000 kr

Visning

Sön 19/10 kl 15:00–16:00 Boka visning
....

Mikael Ottosson

Ansvarig mäklare
0730-473700 E-post

Sofie Thulin

Extra kontaktperson
0737-802849 E-post
Boutrednings- & Mäklarfirma HILDING OTTOSSON AB är specialiserade på bostäder som skiljer sig från mängden. Dessa kräver en helt annan handläggning och här besitter vi mer än 100-års erfarenhet.

Vi samarbetar med specialutbildad fotograf, erfaren arkitekt, stylist och ad, allt för att ge din bostad det som den förtjänar och för att kunna maximera värdet av din försäljning.

I princip alla våra fastigheter som vi säljer låter vi besiktiga innan det att vi annonserar fastigheten, vilket är en oerhörd fördel för såväl säljaren men även för köparen. Detta gör att vi får en smidig försäljning utan att det skall uppkomma okänd information i samband med köparens besiktning.

Denna bostad är bara en av de som vi har till försäljning för stunden och fler kommer inom kort!

Vill du veta vad din bostad är värd och hur vi kan hjälpa dig att kvalitetssäkra din försäljning och samtidigt maximera utfallet vid en försäljning?

Välkommen att kontakta ansvarig fastighetsmäklare för en konfidentiell handläggning, eller någon av mina duktiga kollegor på kontoret, tel. 040-40 00 01.

Om du föredrar ett personligt möte så är du är välkommen att titta in på vårt kontor i Svedala (Storgatan 7) så bjuder vi på en kopp kaffe och berättar hur vi kan hjälpa dig med din försäljning!
 SJÖGRÄSVÄGEN 40
 SJÖGRÄSVÄGEN 40
 SJÖGRÄSVÄGEN 40
 SJÖGRÄSVÄGEN 40
 SJÖGRÄSVÄGEN 40
 SJÖGRÄSVÄGEN 40
 SJÖGRÄSVÄGEN 40
 SJÖGRÄSVÄGEN 40
 SJÖGRÄSVÄGEN 40
 SJÖGRÄSVÄGEN 40
 SJÖGRÄSVÄGEN 40
 SJÖGRÄSVÄGEN 40
 SJÖGRÄSVÄGEN 40
 SJÖGRÄSVÄGEN 40
 SJÖGRÄSVÄGEN 40
 SJÖGRÄSVÄGEN 40
 SJÖGRÄSVÄGEN 40
 SJÖGRÄSVÄGEN 40
 SJÖGRÄSVÄGEN 40
 SJÖGRÄSVÄGEN 40
 SJÖGRÄSVÄGEN 40
 SJÖGRÄSVÄGEN 40
 SJÖGRÄSVÄGEN 40
 SJÖGRÄSVÄGEN 40
 SJÖGRÄSVÄGEN 40
 SJÖGRÄSVÄGEN 40
 SJÖGRÄSVÄGEN 40
 SJÖGRÄSVÄGEN 40
 SJÖGRÄSVÄGEN 40
 SJÖGRÄSVÄGEN 40
 SJÖGRÄSVÄGEN 40
 SJÖGRÄSVÄGEN 40
 SJÖGRÄSVÄGEN 40
 SJÖGRÄSVÄGEN 40
 SJÖGRÄSVÄGEN 40
 SJÖGRÄSVÄGEN 40
 SJÖGRÄSVÄGEN 40
 SJÖGRÄSVÄGEN 40
 SJÖGRÄSVÄGEN 40
 SJÖGRÄSVÄGEN 40
 SJÖGRÄSVÄGEN 40
 SJÖGRÄSVÄGEN 40
 SJÖGRÄSVÄGEN 40
 SJÖGRÄSVÄGEN 40
 SJÖGRÄSVÄGEN 40
 SJÖGRÄSVÄGEN 40
 SJÖGRÄSVÄGEN 40
 SJÖGRÄSVÄGEN 40
 SJÖGRÄSVÄGEN 40
 SJÖGRÄSVÄGEN 40
 SJÖGRÄSVÄGEN 40
 SJÖGRÄSVÄGEN 40
 SJÖGRÄSVÄGEN 40
 SJÖGRÄSVÄGEN 40
 SJÖGRÄSVÄGEN 40
 SJÖGRÄSVÄGEN 40
 SJÖGRÄSVÄGEN 40
 SJÖGRÄSVÄGEN 40
 SJÖGRÄSVÄGEN 40
 SJÖGRÄSVÄGEN 40
 SJÖGRÄSVÄGEN 40
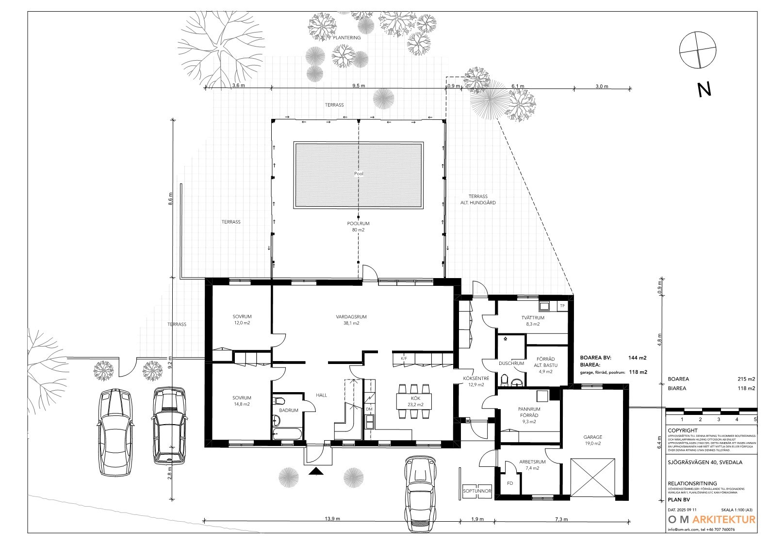
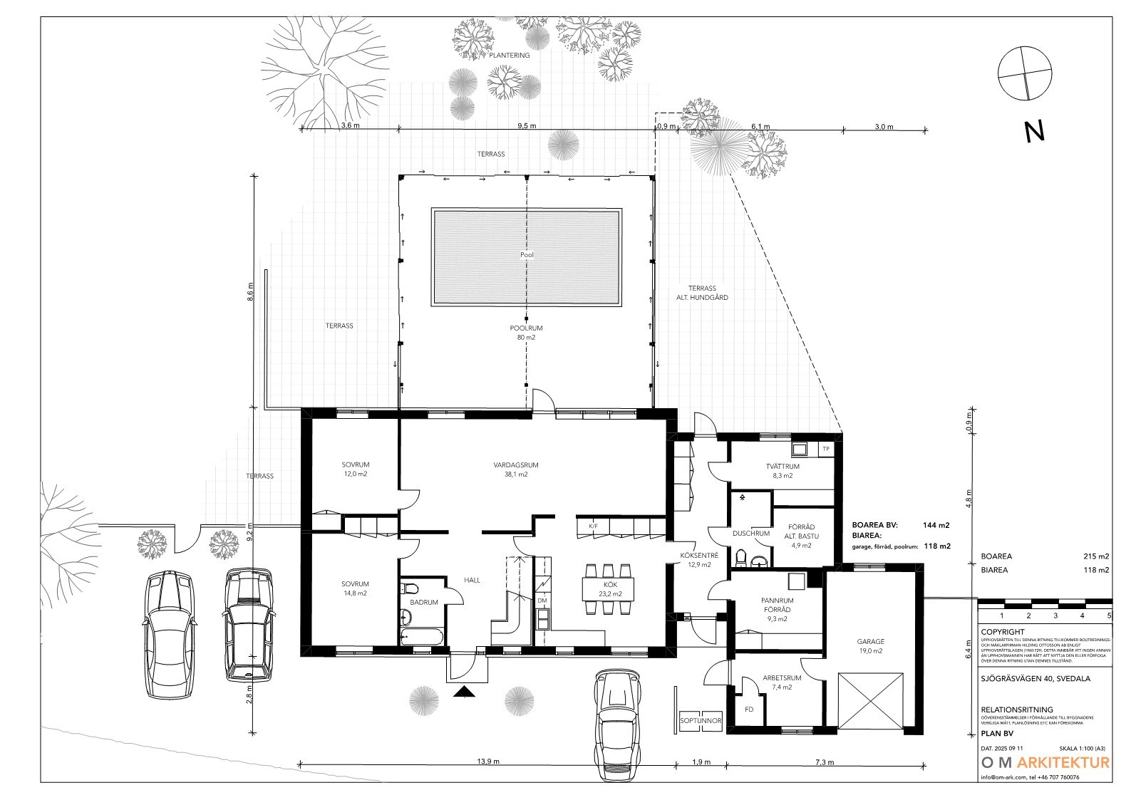
Planritning
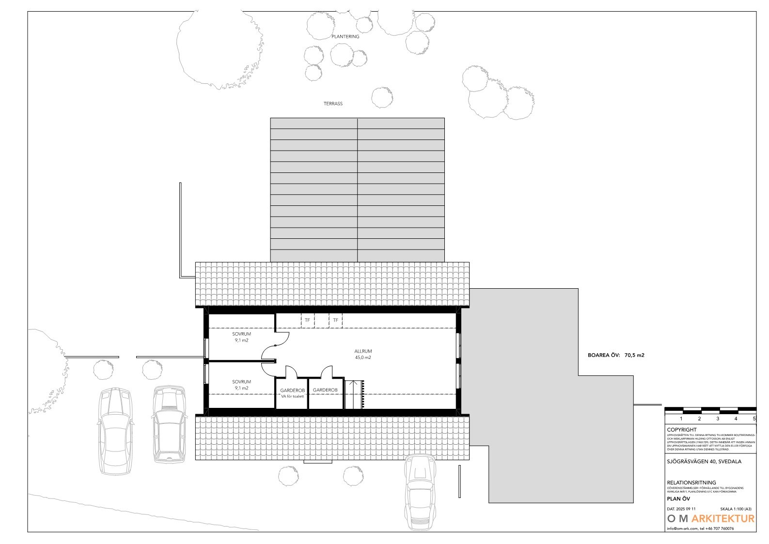
Planritning

Allmänt

Välkomna in i denna fantastiska boendemiljö. Här möts ni av en underbart vacker bostad med stora fina ljusa rum. Planlösningen är mycket funktionell och väl genomtänkt.

Entréplan (144 kvm)

-

Hall

Välkomnande hall i vinkel med klinkergolv.

Vardagsrum (38,1 kvm)

Stort ljust vardagsrum med vackert klinkergolv. Stort fönsterparti mot poolrummet vilket gör att detta rum får ett fint ljusflöde.

Kök (23,2 kvm)

Rymligt kök med bra köksinredning och fina arbetsytor. Fönster mot vägen skapar trivsel till detta rum. Här finns plats för matbord för 6-8 personer.
Köket är utrustat med Husqvarna spis (2019), Franke köksfläkt (2015), Electrolux kyl och frys (ä) samt Siemens diskmaskin (ä). Bra med förvaringsutrymme i bl.a. högskåp.

Sovrum (14,8 kvm)

Stort sovrum med fönster mot vägen. I detta rum finns tre garderober varav en dubbelgarderob.

Sovrum (12 kvm)

Fint sovrum med fönster mot trädgården. I detta rum finns en dubbelgarderob.

Badrum

Badrum med toalett, tvättställ och badkar.

Poolrum (80 kvm)

I anslutning till vardagsrummet finner ni detta fantastiska rum där poolen har en central del i rummet. här finns plats för bord och stolar och de stora fönsterpartierna är öppningsbara mot terrassen och trädgården.
Taket är ett sadeltak vilket gör att rummet får en luftig känsla. Taket är dessutom alldeles nytt och konstruktionen målades år 2024.

Köksentré (12,9 kvm)

Perfekt entré på gaveln av huset som fungerar som en länk mellan bostaden och sekundära utrymmen som beskrivs här nedan:

Tvättrum (8,3 kvm)

Perfekt tvättstuga med tvättmaskin och torktumlare. Här finns även en vask och bra med arbetsytor. Enkelt når man trädgården om man sommartid vill hänga ut tvätten för torkning.
Här finns LG tvättmaskin (2019) samt Electrolux torktumlare (2014).

Duschrum

Helkaklat duschrum med toalett, tvättställ samt stor duschplats.

Bastu (4,9 kvm)

Utrymme som är förberett för bastu. Idag används utrymmet som förråd.

Pannrum / förråd (9,3 kvm)

Här finns husets teknikrum med husets värmepump som är en ytjordvärmepump. I trädgården finns en slinga på 400 meter. Jordvärmen installerades år 2002 och pannan byttes ut 2017.

Ovanvåning (70,5 kvm)

-

Allrum (45 kvm)

Stort allrum med två takfönster och två gavelfönster, vilket gör att detta rum enkelt kan avdelas till ytterligare två sovrum för den som så önskar. I detta rum finns även två stora garderober, varav den ena är förberedd för att kunna byggas om till badrum (vatten och avlopp är uppdraget).

Sovrum (9,1 kvm)

Bra sovrum med gavelfönster. Här finns plats för både säng och skrivbord. Ett perfekt barnrum.

Sovrum (9,1 kvm)

Även detta sovrum har gavelfönster.

Kort fakta

Typ
Friliggande villa
Byggnadstyp
1 ½ plan
Upplåtelseform
Friköpt
Fast.beteckning
Svedala 204:32
Adress
SJÖGRÄSVÄGEN 40
Område
Sjödiken
Kommun
Svedala
Boarea/biarea
215/118 kvm
Antal rum
6 rum & kök, varav 4 sovrum
Tomtarea
7 542 kvm
Pris
5 750 000 kr eller högstbjudande

Byggnad

Byggnadstyp
1 ½ plan
Byggnadsår
1974
Fasad
Tegel
Stomme
Lättbetong
Fönster
Kopplade fönster (nv), isolerglas (ov)
Bjälklag
Trä
Plåtarbete
Plåt
Tak
Betongpannor
Grund
Betongplatta på mark
Uppvärmning
Vattenburen värme via värmepump (jordvärme)
Vatten/avlopp
Kommunalt vatten och kommunalt avlopp.
Ventilation
Självdrag och mekanisk frånluft (bad/kök)
Övriga byggnader
I trädgården finns en friggebod

Tomten

7 542 kvm. Underbart vacker tomt med fina fruktträd, perenna blommor och vintergröna buskar.

Uteplats

Flertalet uteplatser finns vid huset och i trädgården.

Bilplats

Biluppställningsplats för flera bilar, perfekt när man har gäster på besök.

TV- och internetanslutning

TV: Via mobilt bredband. Bredband: Mobilt bredband..

Driftkostnader

Uppvärmning
12 068 kr
Hushållsel
8 250 kr
Vatten/avlopp
9 732 kr
Renhållning
2 690 kr
Summa
32 740 kr
(fastighetsavgift/skatt på 10 074 kr tillkommer)

Säljaren har årligen (2024) förbrukat: 9 141 kWh elström, 126 kbm vatten. Utöver ovanstående så bör man teckna en villaförsäkring avs. fastighetens byggnad. Denna kostar c:a 5.500 kr/år.

Besiktning

Bostaden är besiktigad.

Energideklaration

Status
Utförd
Prestanda
23 kWh/m2/år
Energiklass
A

Ekonomi

Taxeringsvärde
3 795 000 kr (fastställt avseende år 2024)
Värdeår
1929
Byggnadsvärde
2 095 000 kr
Markvärde
1 700 000 kr
Skatt/avgift
10 074 kr
Typkod
220, Småhusenhet, bebyggd

Pantbrev

Totalt 5 st pantbrev om 362 000 kr.

Servitut / Planbestämmelser

Planbestämmelser
Vägplan (2017-05-15)
Gemensamhetsanläggningar
Samfällighet: Svedala svedala s:111
Samfällighet: Svedala svedala s:50
Samfällighet: Svedala svedala s:51
Samfällighet: Svedala svedala s:65
Samfällighet: Svedala svedala s:66
Samfällighet: Svedala svedala s:73
Samfällighet: Svedala svedala s:74
Samfällighet: Svedala svedala s:81
Samfällighet: Svedala svedala s:89
Samfällighet: Svedala svedala s:91
Skattetal: mantal 137/260784

Övrigt

Köparen uppmanas att noggrant undersöka fastighetens skick genom anlitande av sakkunnig person/besiktningsman. Köparen äger givetvis rätt (om så önskas) att besiktiga fastigheten före kontraktets undertecknande. Alternativt lämnas villkor om besiktning i köpekontrakt.

Säljaren har före försäljningen låtit förbesiktiga fastigheten genom byggnadsingenjör Peter Kiel Andersson på B&P Byggkonsult AB.
Peter Kiel Andersson är godkänd besiktningsman för överlåtelsebesiktningar och ansluten till SBR (Svenska Byggnadsingenjörers Riksförbund).

Besiktningsprotokollet lämnas till spekulanterna i samband med visningstillfället.

Köparen har möjlighet, om de så önskar att överta ansvaret för besiktningen till en kostnad av 4.000 kr, vilken summa besiktningsmannen debiterar efter en grundlig genomgång av besiktningsprotokollet tillsammans med köparen. Detta sker oftast på plats i bostaden.

Kort fakta

Typ
Friliggande villa
Byggnadstyp
1 ½ plan
Upplåtelseform
Friköpt
Fast.beteckning
Svedala 204:32
Adress
SJÖGRÄSVÄGEN 40
Område
Sjödiken
Kommun
Svedala
Boarea/biarea
215/118 kvm
Antal rum
6 rum & kök, varav 4 sovrum
Tomtarea
7 542 kvm
Pris
5 750 000 kr eller högstbjudande